- トーシンホームトップページ
- 2号棟 伊勢原市八幡台2期
新築一戸建て
2号棟 伊勢原市八幡台2期
情報更新日:2025/11/06 次回更新予定日:2025/11/20
所在地神奈川県伊勢原市八幡台1丁目[周辺地図]
交 通小田急小田原線「伊勢原」駅徒歩12分


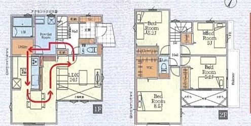
各棟情報
物件詳細情報
物件No.20000426620-002
| 所在地 | 神奈川県伊勢原市八幡台1丁目 | ||
|---|---|---|---|
| 交通 | 小田急小田原線「伊勢原」駅徒歩12分 | ||
| 間取 | 4LDK + SIC+WIC+吹抜け (LDK20帖、洋室5.2帖、洋室8.5帖、洋室5帖、洋室5.23帖) | ||
| 土地面積 | 122.32m² | ||
| 建物面積 | 107.71m² | ||
| 販売戸数 | 2戸 | 総戸数 | 全2戸 |
| 築年・入居 | 2025年6月中旬 | バルコニー | 南西向き |
| 建物現況 | 完成済 | 権利種類 | 所有権 |
| 小学校区 | 竹園小学校(880m) | 中学校区 | 伊勢原中学校(750m) |
| 取引態様 | 売主 | ||
- ※価格は物件の代金総額を表示しており、消費税が課税される場合は税込み価格です。(1,000円未満は切り上げ。)
税率は引き渡し時期により異なりますので、各物件の詳細につきましてはお問い合わせください。 - ※敷地権利が借地権のものは価格に権利金を含みます。
- ※制作中に内容が変更される場合もありますので、あらかじめご了承ください。
- ※購入の前には物件内容や契約条件についてご自身で十分な確認をしていただくようにお願いいたします。
- ※完成予想図はいずれも外構、植栽、外観等実際のものとは多少異なることがあります。
- ※CG合成の画像の場合、実際とは多少異なる場合があります。
周辺地図
周辺施設一覧
- ショッピングセンター
- スーパー
- コンビニ
- ドラッグストア
- ホームセンター
- 飲食店
- その他店舗
- 商店街
- 大学
- 専門学校
- 高校・高専
- 中学校
- 小学校
- 保育園
- 幼稚園
- 公民館・児童館
- 病院
- 郵便局
- 役所
- 図書館
- 金融機関
- 警察・消防
- 趣味・娯楽施設
- 公園・運動施設
- 周辺の街並み
- 駅
- その他
- トーシンホームトップページ
- 2号棟 伊勢原市八幡台2期






